Van Driel Makelaardij gebruikt cookies om de website naar behoren te laten werken, om functies voor social media te bieden en om onze website te analyseren. Op onze website kun je ons Cookiebeleid vinden.

Visbankflat 24 - Vlaardingen

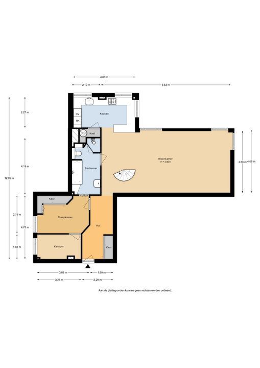
Plattegronden

Omschrijving

Heerlijk ruim penthouse met dakterras en eigen parkeerplaats in hartje Vlaardingen en dat op EIGEN GROND
Bent u op zoek naar een ruim, comfortabel en instapklaar penthouse op een unieke locatie? Dit fantastische appartement van 123 m² is gelegen op de 4e en 5e verdieping van een modern gebouw midden in het centrum van Vlaardingen. U woont hier letterlijk aan de oude haven, omringd door gezellige horecagelegenheden en op loopafstand van winkels, bioscoop, stadspark ’t Hof en alle andere stadse voorzieningen.
De ligging in de gezellige binnenstad is ideaal. Direct aan het horecaplein, nabij het winkelcentrum, marktplein, bioscoop en recreatiegebied de Broekpolder. De bereikbaarheid is uitstekend: binnen enkele minuten zit u op de A4/A20 en het metrostation Vlaardingen Centrum is op loopafstand.
Kortom, een instapklaar, modern penthouse op een toplocatie met alle comfort die u zich maar kunt wensen. Maak snel een afspraak voor een bezichtiging!

Indeling

Begane grond:
Afgesloten entree met intercom, nette hal met trapopgang en lift.

4e verdieping (woonverdieping):
De ruime en lichte woonkamer biedt veel comfort en een prachtig uitzicht. De moderne open keuken (uit 2016) is voorzien van een natuurstenen werkblad, bar en diverse inbouwapparatuur zoals een 4-pits gaskookplaat met afzuigkap, koel-vriescombinatie, oven, combimagnetron en vaatwasser. Tevens bevindt zich op deze verdieping een van de twee badkamers, compleet met ligbad, toilet en wastafel.
Ook vindt u hier een mooie slaapkamer met doorgang naar een extra kamer – ideaal als inloopkast, werkruimte of babykamer.

5e verdieping (slaapverdieping):
Royale slaapkamer met vaste schuifwandenkast, airco, eigen badkamer met toilet, wastafel en douche, berging en toegang tot het dakterras.

Buitenruimte
Het absolute pronkstuk van deze woning is het ruime dakterras van maar liefst 46 m². Hier geniet u in alle rust van de zon, een panoramisch uitzicht over de stad en de haven, en heeft u voldoende ruimte voor een loungeset, buitenkeuken en eettafel.

Kelder:
Hier bevindt zich de eigen parkeerplaats in de afgesloten parkeergarage en een privéberging van 4,8 m².

Bijzonderheden:
- Oplevering in overleg.
- Bouwjaar 1981.
- Woonoppervlakte: 123 m² + dakterras á 46m2 (het formaat van het dakterras wijkt af van hetgeen er in de splitsingsakte is vastgelegd.)
- Energielabel C.
- 2 badkamers, beide met toilet
- Eigen parkeerplaats in de parkeergarage
- Berging op de begane grond (4,8 m²)
- Gehele woning voorzien van parketvloeren en gestuukte wanden
- Lift in het gebouw
- Actieve VvE met een maandelijkse bijdrage á € 463,- per maand.
- Verwarming middels blokverwarming, u betaalt hier € 150,- per maand voor aan de VVE.
- Warm water middels eigen elektrische boiler van 120 liter.
- EIGEN GROND.
- Gelegen in beschermd stadsgebied.
- In de koopakte wordt een ouderdomsclausule opgenomen.


--------------------

Neem uw eigen NVM aankoopmakelaar mee, deze komt op voor uw belang.
De gegeven informatie is met zorg samengesteld, aan de juistheid of volledigheid kunnen echter geen rechten worden ontleend. Alle verstrekte informatie moet beschouwd worden als een uitnodiging tot het doen van een bod of om in onderhandeling te treden.

Kenmerken

Overdracht

Vraagprijs
€ 365.000 k.k.
Status
Beschikbaar
Oplevering
In overleg
Wijk
Centrum

Bouw

Appartement
Maisonnette, Appartement
Woonlaag
4
Soort bouw
Bestaande bouw
Bouwjaar
1981
Onderhoud binnen
Goed
Onderhoud buiten
Goed
Bijzonderheden
Beschermd stads- of dorpgezicht

Oppervlakten en inhoud

Oppervlakte
123m²
Inhoud
402m³

Indeling

Kamers
4
Slaapkamers
3
Badkamers
2
Verdiepingen
2
Voorzieningen
Airconditioning, Lift, Natuurlijke ventilatie, TV-Kabel

Buitenruimte

Ligging
waterfront, Aan het water, In centrum
Schuur
Box

Energie

Energielabel
C
Isolatie
Dakisolatie, Grotendeels dubbelglas, Muurisolatie
Warm water
Elektrische boiler eigendom
Verwarming
Blokverwarming
Soort garage
Parkeerplaats

Bekijk verloop van de zon

Uw browser ondersteunt geen WebGL

Documenten

Locatie

Bereken route
[ { "address": "Visbankflat 24", "zipCode": "3131 BW", "city": "Vlaardingen", "lat": 51.9093522, "lng": 4.3433676, "heading": 0, "pitch": 0 } ]

Stel een vraag

Uw bericht is naar ons verzonden. Wij nemen zo snel mogelijk contact met u op.

Er is iets mis gegaan met het versturen van het formulier.
Controleer of u alle velden (goed) heeft ingevoerd en probeer het nog een keer.

Wilt u een bezichtiging plannen?

Hoeveel is ?