Van Driel Makelaardij gebruikt cookies om de website naar behoren te laten werken, om functies voor social media te bieden en om onze website te analyseren. Op onze website kun je ons Cookiebeleid vinden.

Valeriusstraat 149 - Vlaardingen

Verkocht onder voorbehoud

Plattegronden

Omschrijving

Heerlijk ruime 5-kamer eengezinswoning (voorheen 6 kamers) met fijne zonnige tuin op het zuidwesten, op loopafstand van het gezellige centrum van Vlaardingen. De woning heeft een ruime, moderne open keuken, de gehele woning is voorzien van kunststof kozijnen en er zijn 10 zonnepanelen.
Een fijne woning om je helemaal eigen te maken, met alle voorzieningen zoals openbaar vervoer, winkels en scholen, binnen handbereik.

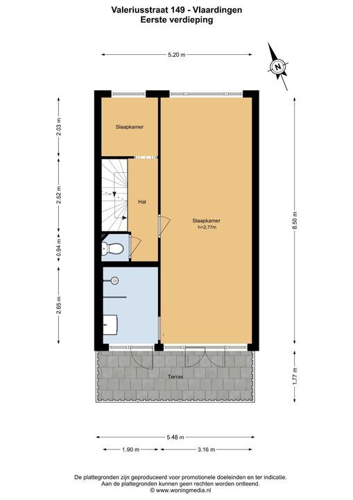
Indeling

Ruime entreehal met trapopgang en meterkast, tweede hal met trapkast en grote, licht betegelde toiletruimte met zwevend toilet, fonteintje en handdoekradiator.

Begane grond
Heerlijk lichte woonkamer met open keuken van totaal 42 m2 met laminaatvloer, spachtelputz wanden, sierschouw met elektrische sierhaard, en aan beide zijden kunststof kozijnen met HR++ glas. Toegangsdeur naar achtertuin, met markies.

Open keuken aan de voorzijde van de woning met hoek- en aparte wandopstelling, veel opbergruimte en werkruimte, roomwitte fronts met een mooie landelijke uitstraling, lichte betegelde achterwand, grijsgemeleerd kunststof aanrechtblad, 5-pits gaskookplaat, twee grote apothekerskasten, 15 liter close in boiler, heteluchtoven, losse koelkast.

Eerste verdieping
Overloop met toegang tot beide kamers op deze verdieping, en toegang tot het aparte, tweede toilet.
Kleine slaap- of werkkamer aan de voorzijde van 3,9 m2.
Zeer grote slaapkamer van bijna 27 m2 (voorheen 2 kamers) met kastenwand, openslaande deuren naar balkon en toegang tot badkamer.

Ruim opgezette badkamer van 5 m2 met wastafelmeubel, spiegelkast, grote bergkast, inloopdouche met glazen scherm, watergoot en thermostaatkraan, handdoekradiator en ingebouwde plafondspots. Vanuit de badkamer eveneens toegang tot het balkon aan de achterzijde.

Groot zonnig balkon van 9,7 m2 aan achterzijde met gecoate vloer en glazen overkapping, over de volle breedte van de woning. Een heerlijk plekje om te zitten!
Elektrisch bedienbare rolluiken aan de achterzijde.

Tweede verdieping
Overloop en badkamer van 4,9 m2 met douchecabine, wastafel en aansluiting wasmachine. Toegang naar slaapkamers.
Ruime slaapkamer aan de voorzijde van ca. 13,3 m2 met grote kunststof dakkapel en kast met CV-ketel, met laminaatvloer en gestuukte wanden. Toegang naar vliering.
Slaapkamer van ca. 10,9 m2 aan de achterzijde met vaste kast.

Tuinen
Achtertuin op zuidwesten van 6,70 (deels 8,34) x 5,58 m met sierbestrating, groot terras en borders, buitenkraan en zij-achterom naar steeg.
Achterin de tuin een stenen berging van 7,1 m2 voorzien van elektra en met betonvloer.
Grotendeels betegelde voortuin van ca. 8 m2, met buitenkraan.

Overige
- Woonoppervlakte 134 m2, inhoud 457 m3.
- Ruime zonnige achtertuin op het zuidwesten.
- Verwarming en warm water via Nefit HR combiketel, ca. 2012.
- Meterkast met 6 groepen en 1x aardlekschakelaar.
- Parkeerruimte voor de deur, vrij parkeren.
- Volledig kunststof kozijnen, deels HR++.
- 10 zonnepanelen.
- Begane grondvloer geïsoleerd met isochips. Geïsoleerde en met keraliet afgewerkte zijgevel.
- Energielabel C.
- Gelegen op erfpachtsgrond met een eeuwigdurend contract, de jaarlijkse canon bedraag € 44,-.
- Oplevering in overleg.

-------------------------------

Neem uw eigen NVM-aankoopmakelaar mee; deze behartigt uw belangen. De gegeven informatie is met zorg samengesteld; aan de juistheid of volledigheid kunnen echter geen rechten worden ontleend. Alle verstrekte informatie moet worden beschouwd als een uitnodiging tot het doen van een aanbod of om in onderhandeling te treden.

Kenmerken

Overdracht

Vraagprijs
€ 395.000 k.k.
Status
Verkocht onder voorbehoud
Oplevering
In overleg
Wijk
Vettenoordse polder Oost

Bouw

Woonhuis
Eengezinswoning, Geschakelde woning
Soort bouw
Bestaande bouw
Bouwjaar
1936
Onderhoud binnen
Goed
Onderhoud buiten
Goed

Oppervlakten en inhoud

Oppervlakte
134m²
Perceel
121m²
Inhoud
457m³

Indeling

Kamers
5
Slaapkamers
3
Badkamers
2
Verdiepingen
3
Voorzieningen
Buitenzonwering, Rolluiken

Buitenruimte

Ligging
Aan rustige weg, In woonwijk
Balkon
Ja
Tuin
Achtertuin, Voortuin
Achtertuin
Zuidwest, 6×8cm
Schuur
Vrijstaand steen
Faciliteiten schuur
Voorzien van elektra

Energie

Energielabel
C
Isolatie
Dubbel glas, Muurisolatie
Warm water
C.V.-ketel
Verwarming
C.V.-ketel
Ketel
Nefit HR (Combi-ketel, Eigendom)

Bekijk verloop van de zon

Uw browser ondersteunt geen WebGL

Documenten

Locatie

Bereken route
[ { "address": "Valeriusstraat 149", "zipCode": "3131 TK", "city": "Vlaardingen", "lat": 51.9072557, "lng": 4.3353097, "heading": 0, "pitch": 0 } ]

Stel een vraag

Deze woning is Verkocht onder voorbehoud

Uw bericht is naar ons verzonden. Wij nemen zo snel mogelijk contact met u op.

Er is iets mis gegaan met het versturen van het formulier.
Controleer of u alle velden (goed) heeft ingevoerd en probeer het nog een keer.

Wilt u een bezichtiging plannen?

Hoeveel is ?