Van Driel Makelaardij gebruikt cookies om de website naar behoren te laten werken, om functies voor social media te bieden en om onze website te analyseren. Op onze website kun je ons Cookiebeleid vinden.

Thomas à Kempisstraat 124 - Vlaardingen

Verkocht onder voorbehoud

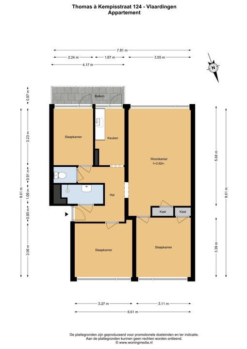
Plattegronden

Omschrijving

Op een rustige en groene plek aan de rand van de Westwijk en recreatiegebied Midden Delfland ligt dit 4-kamerappartement op de 2e verdieping. Vanuit de woning loop je zo de Zuidbuurt in, een unieke landelijke omgeving met onder andere voedselbos Vlaardingen, Golfbaan Schinkelshoek, de Vreemde Vogel en de Krabbe- en Surfplas.
Dit appartement is een voormalige huurwoning. Vanuit de woning en vanaf het balkon is er uitzicht over het water en groen. Het appartement is geheel voorzien van kunststof kozijnen met HR++ glas en heeft een eigen berging op de begane grond.

INDELING:
Begane grond:
Entree op de begane grond met afgesloten portiek, brievenbussen en toegang tot de bergingen.

2e verdieping:
Meterkast buiten de woning.
Entree, hal, gedeeltelijk betegeld toilet. Lichte woonkamer van ca. 22 m2 met vaste kast, leuk uitzicht en toegang tot de slaapkamer aan voorzijde van bijna 11 m2 met eveneens een vaste kast. Regelmatig wordt deze slaapkamer aan de woonkamer toegevoegd waardoor een woonkamer van ca. 33 m2 kan ontstaan indien gewenst. Een tweede slaapkamer ligt eveneens aan voorzijde van de woning en is ca. 10 m2 groot. De derde slaapkamer van ruim 7 m2 ligt aan achterzijde en heeft via een deur toegang tot het zonnige balkon. De keuken van ca. 5,5 m2, die ook aan de achterzijde ligt is uitgevoerd met een eenvoudige keukeninrichting, electrische boiler en ook hier is een deur naar het balkon.
Geheel betegelde badkamer met douchehoek, wastafelmeubel, en wasmachine aansluiting.

Bijzonderheden:
- Woonoppervlakte ca. 70 m2;
- Energielabel C;
- De gehele woning is voorzien van kunststof kozijnen met HR++ glas;
- Verwarming via blokverwarming, warm water met een electrische boiler;
- Gelegen op erfpacht tot 30 juni 2061, de erfpachtcanon wordt door de VVE betaald;
- Actieve VVE met een bijdrage van € 165,-- per maand (inclusief erfpacht);
- Voorschot voor de stookkosten van € 125,-- per maand;
- Gemeenschappelijke tuin;
- Eigen berging in de onderbouw van ruim 6 m2;
- Voormalige huurwoning, in de koopakte zullen een niet zelfbewoningsclausule en een ouderdomsclausule opgenomen worden;
- Oplevering op korte termijn mogelijk.

-----------------------------------------------

Neem uw eigen aankoopmakelaar mee, deze komt op voor uw belang.

Deze brochure is met zorg samengesteld, wij zijn echter niet aansprakelijk voor eventuele onjuiste of onvolledige informatie. Alle verstrekte informatie moet beschouwd worden als een uitnodiging tot het doen van een aanbod of om in onderhandeling te treden.

Kenmerken

Overdracht

Vraagprijs
€ 245.000 k.k.
Inrichting
Gestoffeerd
Status
Verkocht onder voorbehoud
Oplevering
In overleg
Wijk
Hoogkamer

Bouw

Appartement
Portiekflat, Appartement
Woonlaag
2
Soort bouw
Bestaande bouw
Bouwjaar
1962
Onderhoud binnen
Redelijk
Onderhoud buiten
Goed

Oppervlakten en inhoud

Oppervlakte
70m²
Inhoud
223m³

Indeling

Kamers
4
Slaapkamers
3
Badkamers
1
Verdiepingen
1
Voorzieningen
Natuurlijke ventilatie, TV-Kabel

Buitenruimte

Ligging
Aan rustige weg, Aan het water, Beschutte ligging, In woonwijk, Vrij uitzicht
Balkon
Ja
Schuur
Box

Energie

Energielabel
C
Warm water
Elektrische boiler eigendom
Verwarming
Blokverwarming

Bekijk verloop van de zon

Uw browser ondersteunt geen WebGL

Documenten

Locatie

Bereken route
[ { "address": "Thomas à Kempisstraat 124", "zipCode": "3132 CK", "city": "Vlaardingen", "lat": 51.9058882, "lng": 4.3097229, "heading": 0, "pitch": 0 } ]

Stel een vraag

Deze woning is Verkocht onder voorbehoud

Uw bericht is naar ons verzonden. Wij nemen zo snel mogelijk contact met u op.

Er is iets mis gegaan met het versturen van het formulier.
Controleer of u alle velden (goed) heeft ingevoerd en probeer het nog een keer.

Wilt u een bezichtiging plannen?

Hoeveel is ?