Van Driel Makelaardij gebruikt cookies om de website naar behoren te laten werken, om functies voor social media te bieden en om onze website te analyseren. Op onze website kun je ons Cookiebeleid vinden.

Sportlaan 95 - Vlaardingen

Plattegronden

Omschrijving

Wat een fijne eengezinswoning is deze 5-kamer eengezinswoning in de Sportlaan in de gewilde woonwijk Vlaardingen Ambacht. Uniek aan de woning is de enorm diepe, mooi aangelegde en zonnige achtertuin, die op zijn diepst maar liefst bijna 25 meter diep is. De ligging aan de brede Sportlaan is ideaal, met extra veel parkeergelegenheid voor een jaren dertig wijk.
De woning in de sfeervolle dertiger jaren wijk Ambacht ligt dichtbij het winkelcentrum van Hogendorpkwartier, scholen, voetbalvereniging VFC, en diverse groene recreatie zoals in de Broekpolder. Ook gunstig gelegen ten opzichte van uitvalswegen (oprit snelwegen A20 en A4) en openbaar vervoer (bus- en metro).

Indeling:

Begane grond:
Entree via de gemiddeld 4,5 meter diepe voortuin.
Hal met meterkast/garderobekast, ruim hangend toilet met fonteintje, spots en electrische ventilator.
Woonkamer met open keuken van ca. 38 m². Het woonkamer gedeelte (beton) is voorzien van vloerverwarming als bijverwarming, een erker, allesbrander en laminaatvloer met hoge plinten. Vanuit de woonkamer een trap naar de slaapverdieping. De keuken ligt 1 trede boven de woonkamer en geeft via een deur toegang tot de tuin. Het keukenblok is uitgevoerd in hoekopstelling en voorzien van veel kastruimte, laden, apothekerskast, 4-pits gaskookplaat, grillplaat, afzuigkap, oven, magnetron, koelkast en losse vaatwasser.

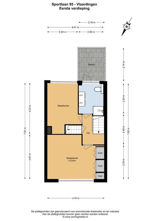
1e verdieping:
Overloop/hal met toegang tot alle vertrekken op deze verdieping. Slaapkamer aan voorzijde van bijna 16 m² over de gehele breedte van de woning met kastenwand en inbouwspots. Tweede slaapkamer aan achterzijde van ca. 10 m². De geheel betegelde moderne badkamer van ruim 5 m2 is voorzien van een inloopdouche met regendouche en glazen scherm, dubbel wastafelmeubel, spiegelkasten, designradiator, inbouwspots en hangend Duravit toilet met wc-douche.
Vanuit de badkamer is het ruime dakterras bereikbaar van bijna 6 m².

2e verdieping:
Multifunctionele ruimte van totaal ca. 17 m² met dakkapel, douche, wasmachine aansluiting, spoelbak en opstelling CV-combiketel. Luik met vlizotrap naar bergvliering. Het is mogelijk deze ruimte om te bouwen naar aparte (slaap)kamer.
Aan de tuinzijde een slaapkamer van bijna 12 m² met dakkapel.

Vliering:
De vliering heeft een nokhoogte van ca. 1,5 meter en een vloeroppervlakte van bijna 9 m².

Tuinen:
Zonnige achtertuin met een diepte tussen de ca. 22 en ca. 25 meter diep. De tuin is fraai aangelegd met een groot terras, sierbestrating, gras en groenborders. Een buitenkraan en elektrisch zonnescherm zijn aanwezig. De tuin heeft een achterom en achterin de tuin ligt een grote berging van bijna 21 m2 met overkapping, wateraansluiting en elektra. Op de berging liggen 8 zonnepalen uit 2023 met een capaciteit van 430 wp per paneel.
Voortuin van gemiddeld ca. 4.50 meter diep met grind en bestrating.

Bijzonderheden:

• Kozijnen in hout uitgevoerd, de woning is grotendeels voorzien van dubbel glas en deels HR++ glas
• Energielabel E
• CV-combi ketel Remeha Avanta HR uit 2008
• Bouwjaar 1937
• Woonoppervlakte 108 m², grondperceel 196 m²
• Eeuwigdurende erfpacht met een vaste jaarlijkse canon van € 23,98
• Oplevering in overleg, indicatie 1e kwartaal 2026

________________________________________

Neem uw eigen Vlaardingse aankoopmakelaar mee, deze komt op voor uw belang.

Deze brochure is met zorg samengesteld, wij zijn echter niet aansprakelijk voor eventuele onjuiste of onvolledige informatie. Alle verstrekte informatie moet beschouwd worden als een uitnodiging tot het doen van een aanbod of om in onderhandeling te treden.

Kenmerken

Overdracht

Vraagprijs
€ 500.000 k.k.
Inrichting
Gestoffeerd
Status
Beschikbaar
Oplevering
In overleg
Wijk
Babberspolder Noord

Bouw

Woonhuis
Eengezinswoning, Tussenwoning
Soort bouw
Bestaande bouw
Bouwjaar
1937
Onderhoud binnen
Goed
Onderhoud buiten
Goed

Oppervlakten en inhoud

Oppervlakte
108m²
Perceel
196m²
Inhoud
397m³

Indeling

Kamers
5
Slaapkamers
3
Badkamers
1
Verdiepingen
3
Voorzieningen
Buitenzonwering, Natuurlijke ventilatie, Rookkanaal, TV-Kabel

Buitenruimte

Ligging
Aan rustige weg, In woonwijk, Vrij uitzicht
Tuin
Achtertuin, Voortuin
Achtertuin
Zuidoost, 130m², 559×2324cm
Schuur
Vrijstaand hout
Faciliteiten schuur
Voorzien van elektra, Voorzien van water

Energie

Energielabel
E
Isolatie
Dubbel glas, Muurisolatie, Vloerisolatie
Warm water
C.V.-ketel, Elektrische boiler eigendom
Verwarming
C.V.-ketel, Vloerverwarming gedeeltelijk
Ketel
Remeha Avanta (2008, Combi-ketel, Eigendom)

Bekijk verloop van de zon

Uw browser ondersteunt geen WebGL

Documenten

Locatie

Bereken route
[ { "address": "Sportlaan 95", "zipCode": "3135 GS", "city": "Vlaardingen", "lat": 51.92059, "lng": 4.3536242, "heading": 0, "pitch": 0 } ]

Stel een vraag

Uw bericht is naar ons verzonden. Wij nemen zo snel mogelijk contact met u op.

Er is iets mis gegaan met het versturen van het formulier.
Controleer of u alle velden (goed) heeft ingevoerd en probeer het nog een keer.

Wilt u een bezichtiging plannen?

Hoeveel is ?