Van Driel Makelaardij gebruikt cookies om de website naar behoren te laten werken, om functies voor social media te bieden en om onze website te analyseren. Op onze website kun je ons Cookiebeleid vinden.

Schipluidersluis 8 - Vlaardingen

Plattegronden

Omschrijving

Heerlijk wonen in deze instapklare, schitterend uitgevoerde, zeer energiezuinige (energielabel A++) 5-kamerwoning. De woning is in 2018 opgeleverd in de nieuwbouwwijk ‘Nieuw Sluis’ die zich op steenworpafstand bevindt van het Vlaardingse centrum. De woning heeft een hoogwaardige afwerking met o.a. vloerverwarming welke per verdieping regelbaar is, luxe keuken, schitterend ruime badkamer, openhaard, openslaande deuren naar de heerlijke tuin op het westen gelegen en maar liefst 16 zonnepanelen en 3 airco's.

De locatie is zeer gunstig vlakbij de Nieuwe Waterweg, supermarkt, de oude haven en het centrum van Vlaardingen. De bereikbaarheid is eveneens goed met de metro (Vlaardingen centrum) en met de auto vanaf de A4/A20. Er is voldoende parkeergelegenheid en oplaadmogelijkheid in de straat.

Indeling

Begane grond

Entree, ruime hal met op maat gemaakte garderobekast, mooi hangend toilet afgewerkt met stijlvolle tegel en fonteintje, meterkast, trapopgang en toegang tot de woonkamer via een mooie glasdeur. De woonkamer van ca. 47 m2 heeft een uitbouw en veel lichtinval middels de grote openslaande deuren. De woonkamer is voorzien van een fraaie grote zandkleurige vloertegel met vloerverwarming, de wanden zijn afgewerkt met stucwerk en deels panelen, ook het plafond is glad gestuukt. Er is een sfeervolle gas openhaard met op maat gemaakte kasten en ingebouwde verlichting. Een grote vaste bergkast onder de trap. De open keuken aan de voorzijde heeft een keukenblok in hoekopstelling alsmede een blok met hoge kasten, een koffienis en een extra koelkast en vriezer. Er is gekozen voor een koperkleurig front met subtiele greep en keramiek aanrechtblad. Veel kastruimte en de navolgende inbouwapparatuur; vaatwasser, 2 grote koelkasten, 2x 3-vaks vriezer, inductie kookplaat, afzuigkap met afvoer naar buiten, heteluchtoven, magnetron en een Quooker kokend waterkraan.

Tuin

Via de openslaande deuren bereikt u de achtertuin welke op het westen gelegen is. De tuin heeft een mooie mix tussen sier betontegels, groen en beplanting. De tuinafscheiding is voorzien van een fraaie houten schutting. De tuin is ruim 7m diep en 5,5 m breed. Achterin de tuin staat een ruime houten berging van ca. 6 m2 op betonplaat, welke is voorzien van elektra. Daarnaast is er in de tuin ook een buitenkraan, twee stopcontacten en elektrisch zonnescherm.

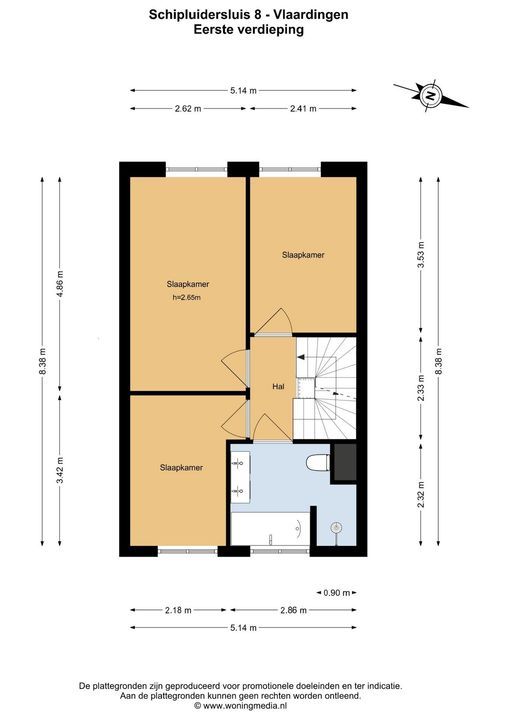
1e verdieping

Ruime overloop met toegang tot alle vertrekken. 3 ruime slaapkamers van respectievelijk 13 m2, 8,6 m2 en 8 m2. Alle slaapkamers zijn voorzien van een eikenlook laminaatvloer, gestukte wanden en trippel dubbel glas. De gehele verdieping is voorzien

van vloerverwarming welke per verdieping regelbaar is. De 2 slaapkamers aan de tuinzijde zijn voorzien van airconditioning.

De exclusieve badkamer is ca. 6,6 m2 groot en is voorzien van luxe betegeling, een breed wastafelmeubel met dubbele kom, spiegelkast met inbouwverlichting, zwevend toilet en grote inloopdouche met watergoot, comfortabel ligbad, handdoekradiator en een groot raam met natuurlijk daglicht.

2e verdieping

Ingedeelde zolder met zolderkamer met ca 22 m2 vloeroppervlakte, airco die kan koelen en verwarmen, laminaatvloer, bergruimte in de schuine dakvlakken en dakkapel met kunststof kozijnen voorzien van elektrisch rolluik. Overloopruimte met dakraam en aansluiting voor een wasmachine en droger.


Bijzonderheden
- Oplevering in overleg, indicatie rondom 1 juni 2026.
- Bouwjaar 2018.
- Volledig geïsoleerd met energielabel A++, 16 zonnepanelen
- Vloerverwarming begane grond en slaapverdieping.
- woonoppervlakte 129 m2 en inhoud 400m3.
- Gelegen op 107 m2 eigen grond.
- Volledig voorzien van houten kozijnen met HR+++ glas.
- Airco splitunit (2023) met 3 aansluitingen en geschikt om te koelen en te verwarmen.
- Intergas HR CV combiketel uit 2018.
- Binnen enkele minuten bereikt u uitvalswegen als de A4 en de A20.
- De metro en bus bevindt zich op loopafstand om in korte tijd uit te komen in Rotterdam, Delft, Den Haag of
Hoek van Holland strand.


--------------------


Neem uw eigen NVM aankoopmakelaar mee, deze komt op voor uw belang.

De gegeven informatie is met zorg samengesteld, aan de juistheid of volledigheid kunnen echter geen rechten worden ontleend. Alle verstrekte informatie moet beschouwd worden als een uitnodiging tot het doen van een bod of om in onderhandeling te treden.

Kenmerken

Overdracht

Vraagprijs
€ 575.000 k.k.
Status
Beschikbaar
Oplevering
In overleg

Bouw

Woonhuis
Eengezinswoning, Tussenwoning
Soort bouw
Bestaande bouw
Bouwjaar
2018
Onderhoud binnen
Uitstekend
Onderhoud buiten
Uitstekend

Oppervlakten en inhoud

Oppervlakte
129m²
Perceel
107m²
Inhoud
505m³

Indeling

Kamers
5
Slaapkamers
4
Badkamers
1
Verdiepingen
3
Voorzieningen
Airconditioning, Buitenzonwering, Glasvezel kabel, Mechanische ventilatie, Rolluiken, TV-Kabel, Zonnepanelen

Buitenruimte

Ligging
Aan rustige weg, In woonwijk
Tuin
Achtertuin
Achtertuin
West, 39m², 540×716cm
Schuur
Vrijstaand hout
Faciliteiten schuur
Voorzien van elektra

Energie

Energielabel
A++
Warm water
C.V.-ketel
Verwarming
C.V.-ketel, Vloerverwarming geheel
Ketel
Intergas HR (2018, Combi-ketel, Eigendom)

Bekijk verloop van de zon

Uw browser ondersteunt geen WebGL

Documenten

Locatie

Bereken route
[ { "address": "Schipluidersluis 8", "zipCode": "3133 MC", "city": "Vlaardingen", "lat": 51.9017799, "lng": 4.3433289, "heading": 0, "pitch": 0 } ]

Stel een vraag

Uw bericht is naar ons verzonden. Wij nemen zo snel mogelijk contact met u op.

Er is iets mis gegaan met het versturen van het formulier.
Controleer of u alle velden (goed) heeft ingevoerd en probeer het nog een keer.

Wilt u een bezichtiging plannen?

Hoeveel is ?