Van Driel Makelaardij gebruikt cookies om de website naar behoren te laten werken, om functies voor social media te bieden en om onze website te analyseren. Op onze website kun je ons Cookiebeleid vinden.

Prins Hendriklaan 27 - Vlaardingen

Verkocht onder voorbehoud

Plattegronden

Omschrijving

Wat een indrukwekkende woning is dit! Deze uitgebouwde en hoogwaardig afgewerkte hoekwoning met een woonoppervlakte van 130 m2 ligt aan de rand van de Oranjebuurt in Vlaardingen Ambacht, naast het historische landje van Chardon. De woning heeft een totale perceeloppervlakte van maar liefst 290 m2 eigen grond. De voor-, zij- en achtertuin zijn zeer riant. De fraaie aangelegde achtertuin heeft daarnaast een erg vrije ligging. De woning is luxe afgewerkt, heeft een uitgebouwde woonkamer en badkamer, twee dakkapellen, een extra doucheruimte, drie riante slaapkamers, twee extra kamers en een zeer grote berging/werkplaats van bijna 25 m2 in de tuin.
De ligging van de woning is centraal, ten opzichte van uitvalswegen en ook scholen en winkels liggen in de directe omgeving.

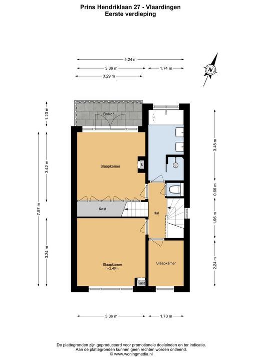
Indeling:

Begane grond:
Entree via de bijna 5 meter diepe voortuin. Tochtportaal met granieten vloer, meterkast. Hal eveneens met granieten vloer, trapopgang, trap/kelderkast. Ruim toilet met hangende closet en hoekfontein.
Uitgebouwde woonkamer met open keuken en een totaal oppervlakte van ca. 52 m2, voorzien van houten vloerdelen en inbouwverlichting. De keuken met erker ligt aan de voorzijde. Het keukenblok bestaat uit een L-vormig blok en separaat hoog wandblok en is naast diverse bergruimte uitgevoerd met Beton Ciré aanrechtblad, spoelbak, 5-pits gaskookplaat, RSV spatscherm en afzuigkap, vaatwasser, koelkast, combi magnetron en stoomoven.
De strak uitgevoerde en tuingerichte woonkamer heeft dubbele openslaande deuren naar de achtertuin met twee convectorputten. De moderne gashaard is geïntegreerd in één meubel samen met de tv en twee kasten. Met één druk op de knop komt de tv tevoorschijn!

1e verdieping:
Overloop met lichtinval via het fraai glas-in-loodraam. Tweede toilet, gedeeltelijk betegeld en vrijhangend. Slaapkamer aan achterzijde van ruim 11 m2 met openslaande deuren naar het balkon (ruim 4 m2 m2), kastenwand over de gehele breedte van de slaapkamer, inbouwspots en praktisch berg/tvmeubel. Slaapkamer aan voorzijde van eveneens ruim 11 m2 met glas-in-lood bovenlichten. Kleine kamer aan voorzijde met glas-in-lood bovenlicht. Deze kamer is goed als werk-/bergkamer te gebruiken. Uitgebouwde badkamer van ruim 6 m2. De badkamer is geheel betegeld en voorzien van plafond met inbouwspots, inloopdouche, whirlpool ligbad, dubbel wastafelmeubel en designradiator.

2e verdieping:
Binnenkomst in de kamer aan achterzijde van bijna 8 m2 met dakkapel en veel praktische bergruimte in de vorm van vaste kasten en knieschotten. Ook de bergvliering is van hieruit toegankelijk. De CV-combiketel en aansluitingen voor de wasmachine en droger zijn in de kasten weggewerkt.
Slaapkamer aan voorzijde met een vloeroppervlakte van bijna 11 m2, dakkapel en vaste kasten. Tussen de twee kamers ligt de geheel betegelde doucheruimte met douche, wastafelmeubel en inbouwspots. De doucheruimte is vanuit beide kamers toegankelijk.

Tuinen:
Fraai aangelegde achtertuin op het noordwesten van bijna 15 meter diep en ca. 7,5 meter breed met groot terras, bestrating, kunstgras en groenborders. Achterin de tuin ligt de enorme berging/werkplaats van bijna 25 m2. Deze berging met betonvloer is geïsoleerd en voorzien van elektra en wateraansluiting. Achterin de tuin liggen ook de sfeervolle veranda en de hottub. Ontsluiting van de achtertuin kan via de poort in de zijtuin naast de woning, maar ook via de openslaande deuren in de berging.
De voortuin is grotendeels betegeld en voorzien van wat groenborders.

Bijzonderheden:

- De woning is goed geïsoleerd, geheel voorzien van dubbel glas en ook spouwmuur-, vloer- en dakisolatie zijn aanwezig.
- Elektrische installatie bestaand uit 12 groepen met 3 aardlekschakelaars.
- Verwarming en warm water middels HR CV-combiketel Remeha Avanta 2020.
- Bouwjaar woning 1937. Woonoppervlak 130 m2, Perceeloppervlakte 290 m2.
- Gelegen op EIGEN grond.
- Oplevering in overleg.

-----------------------------------------------

Interesse in dit huis? Neem uw eigen aankoopmakelaar mee.

Deze brochure is met zorg samengesteld, wij zijn echter niet aansprakelijk voor eventuele onjuiste of onvolledige informatie. Alle verstrekte informatie moet beschouwd worden als een uitnodiging tot het doen van een aanbod of om in onderhandeling te treden.

Kenmerken

Overdracht

Vraagprijs
€ 675.000 k.k.
Inrichting
Gestoffeerd
Status
Verkocht onder voorbehoud
Oplevering
In overleg
Wijk
Oranjebuurt

Bouw

Woonhuis
Eengezinswoning, Hoekwoning
Soort bouw
Bestaande bouw
Bouwjaar
1938
Onderhoud binnen
Goed
Onderhoud buiten
Goed

Oppervlakten en inhoud

Oppervlakte
129m²
Perceel
290m²
Inhoud
484m³

Indeling

Kamers
6
Slaapkamers
5
Badkamers
2
Verdiepingen
3
Voorzieningen
Mechanische ventilatie, TV-Kabel

Buitenruimte

Balkon
Ja
Tuin
Achtertuin, Voortuin
Achtertuin
Noordoost, 114m², 760×1500cm
Schuur
Vrijstaand hout
Faciliteiten schuur
Voorzien van elektra, Voorzien van water

Energie

Energielabel
E
Isolatie
Dakisolatie, Dubbel glas, Muurisolatie, Vloerisolatie
Warm water
C.V.-ketel
Verwarming
C.V.-ketel
Ketel
Remeha Avanta (2020, Combi-ketel, Eigendom)

Bekijk verloop van de zon

Uw browser ondersteunt geen WebGL

Documenten

Locatie

Bereken route
[ { "address": "Prins Hendriklaan 27", "zipCode": "3135 ZA", "city": "Vlaardingen", "lat": 51.9198839, "lng": 4.3464903, "heading": 0, "pitch": 0 } ]

Stel een vraag

Deze woning is Verkocht onder voorbehoud

Uw bericht is naar ons verzonden. Wij nemen zo snel mogelijk contact met u op.

Er is iets mis gegaan met het versturen van het formulier.
Controleer of u alle velden (goed) heeft ingevoerd en probeer het nog een keer.

Wilt u een bezichtiging plannen?

Hoeveel is ?