Van Driel Makelaardij gebruikt cookies om de website naar behoren te laten werken, om functies voor social media te bieden en om onze website te analyseren. Op onze website kun je ons Cookiebeleid vinden.

Liesveld 82 - Vlaardingen

Verkocht onder voorbehoud

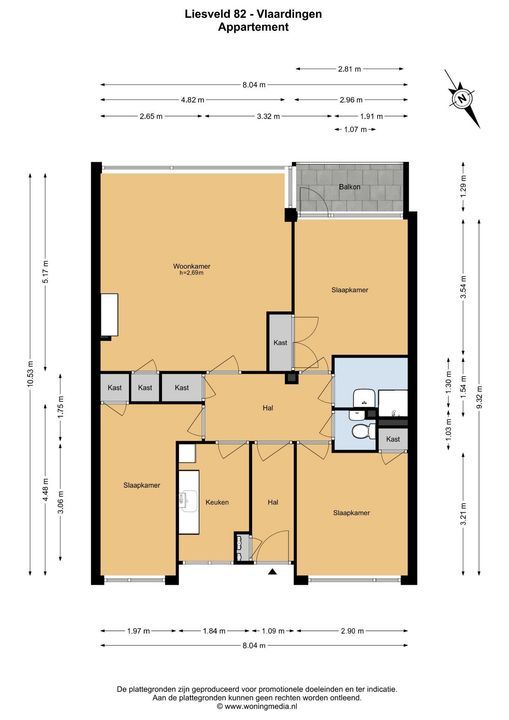
Plattegronden

Omschrijving

Op zoek naar een ruim en betaalbaar appartement wat nog geheel naar eigen smaak te moderniseren/renoveren is, dan kan deze woning zeker wat voor u zijn! Dit 4-kamer appartement van ca. 80 m2 ligt midden in het centrum op de 4e verdieping (3e woonlaag) van een goed onderhouden appartementencomplex met actieve Vereniging van Eigenaren.
Het complex uit 1961 is voorzien van een lift. Door de ligging midden in het winkelcentrum zijn alle voorzieningen op korte loopafstand te vinden.

INDELING

Begane grond:
Afgesloten entree met brievenbussen en bellentableau. Hal met toegang tot trappenhuis, lift en bergingen in de kelder. Naast de entree ligt een gemeenschappelijke fietsenstalling.

4e verdieping (3e woonlaag) :

Entree woning met hal, meterkast en videofoon. 2e hal met toegang tot alle vertrekken van de woning en vaste kast. Gedeeltelijk betegeld toilet met fontein. Woonkamer met zicht op het Liesveld van ca. 24 m2 met een vaste kast. Eventueel is de woonkamer nog te vergroten met de naastgelegen slaapkamer. Aan galerijzijde ligt de keuken met een eenvoudige keukeninrichting. Er zijn drie slaapkamers. Slaapkamer 1 aan voorzijde van bijna 11 m2 heeft dubbele vaste kaste en toegang tot het balkon van bijna 4 m2. Slaapkamer 2 en 3 liggen beide aan galerijzijde en hebben ook allebei een vaste kast. Deze slaapkamers zijn allebei ca. 9,5 m2 groot. De badkamer/doucheruimte is gedeeltelijk betegeld en voorzien van
douche, wastafel en wasmachine aansluiting.

Berging:
In de onderbouw van het complex ligt een grote berging van bijna 9,2 m2 met electra.

Overige:

- De woning is aan galerijzijde nog voorzien van houten kozijnen met enkel glas;
- Overige kozijnen kunststof met dubbel glas;
- Verwarming door middel van blokverwarming, warm water via geiser;
- Meterkast met 2 groepen;
- Erfpacht tot en met 31 juli 2056 met een lage vaste jaarlijkse canon van € 36,30;
- Actieve vereniging van eigenaren met een bijdrage van € 194,02 per maand inclusief voorschot stookkosten;
- In de koopakte worden een niet zelfbewoningsclausule en ouderdomsclausule opgenomen;
- Oplevering op korte termijn mogelijk.

-----------------------------------------------

Neem uw eigen Vlaardingse NVM aankoopmakelaar mee, deze komt op voor uw belang.

De gegeven informatie is met zorg samengesteld, aan de juistheid of volledigheid kunnen echter geen rechten worden ontleend. Alle verstrekte informatie moet beschouwd worden als een uitnodiging tot het doen van een aanbod of om in onderhandeling te treden.

Kenmerken

Overdracht

Vraagprijs
€ 240.000 k.k.
Inrichting
Gestoffeerd
Status
Verkocht onder voorbehoud
Oplevering
In overleg
Wijk
Centrum

Bouw

Appartement
Galerijflat, Appartement
Woonlaag
3
Soort bouw
Bestaande bouw
Bouwjaar
1961
Onderhoud binnen
Matig
Onderhoud buiten
Goed

Oppervlakten en inhoud

Oppervlakte
80m²
Inhoud
258m³

Indeling

Kamers
4
Slaapkamers
3
Badkamers
1
Verdiepingen
1
Voorzieningen
Lift, Natuurlijke ventilatie, TV-Kabel

Buitenruimte

Ligging
In centrum, In woonwijk
Balkon
Ja
Schuur
Box
Faciliteiten schuur
Voorzien van elektra

Energie

Energielabel
F
Isolatie
Gedeeltelijk dubbel glas
Warm water
Geiser eigendom
Verwarming
Blokverwarming

Bekijk verloop van de zon

Uw browser ondersteunt geen WebGL

Documenten

Locatie

Bereken route
[ { "address": "Liesveld 82", "zipCode": "3131 CL", "city": "Vlaardingen", "lat": 51.910405, "lng": 4.341735, "heading": 0, "pitch": 0 } ]

Stel een vraag

Deze woning is Verkocht onder voorbehoud

Uw bericht is naar ons verzonden. Wij nemen zo snel mogelijk contact met u op.

Er is iets mis gegaan met het versturen van het formulier.
Controleer of u alle velden (goed) heeft ingevoerd en probeer het nog een keer.

Wilt u een bezichtiging plannen?

Hoeveel is ?