Van Driel Makelaardij gebruikt cookies om de website naar behoren te laten werken, om functies voor social media te bieden en om onze website te analyseren. Op onze website kun je ons Cookiebeleid vinden.

Kleine Buitenweide 83 - Vlaardingen

Verkocht onder voorbehoud

Plattegronden

Omschrijving

Is het uw droom om gelijkvloers te wonen, te genieten van alle luxe, een heerlijke grote woonkamer van 54 m² te hebben, én een groen uitzicht met buitenruimte op het zuiden?
Kom dan snel kijken in dit ruime en stijlvolle 3-kamer appartement in stadspark ’t Hof, met uitzicht op de watertoren.
Parkeren doet u comfortabel overdekt in de afgesloten parkeergarage.
Het appartement maakt deel uit van een modern complex uit 2019, op een van de mooiste locaties van Vlaardingen – direct aan het Hof en op loopafstand van het gezellige stadscentrum.

Indeling

Begane grond:
Afgesloten entree met bellentableau met camera en brievenbussen.
Representatieve entreehal met lift en toegang tot de parkeergarage, gezamenlijke fietsenberging en privébergingen.

2e woonlaag:
De entree is bereikbaar via de corridor.
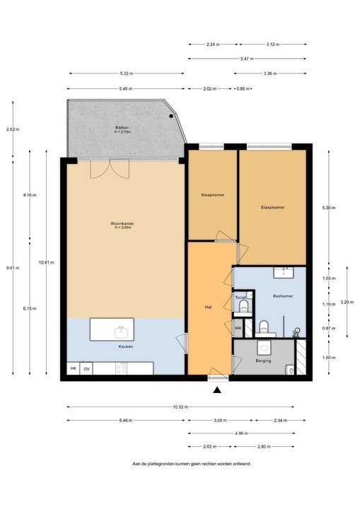
Zeer ruime hal van 12,5 m² met toegang tot alle vertrekken, meterkast en een praktische inpandige berging met aansluiting voor de wasmachine, voorraad- en stookruimte.
Door vrijwel de gehele woning (behalve de natte ruimtes en de hoofdslaapkamer) ligt een fraaie donker eiken pvc-vloer met comfortabele vloerverwarming.
Toiletruimte met wandcloset, fontein en witte betegeling.

Woonkamer:
Zeer royale woonkamer van 54 m² met open keuken en werkeiland. De grote kunststof pui met openslaande deuren zorgt voor een heerlijke verbinding met het terras.
De stijlvolle keuken is van het kwaliteitsmerk Schmidt – synoniem voor Duitse degelijkheid – en voorzien van een granieten aanrechtblad en achterwand, veel kastruimte en de volgende inbouwapparatuur: vaatwasser, inductiekookplaat, hetelucht-combioven, koelkast en vriezer.
Een ideale keuken voor de kookliefhebber!

Slaapkamers en badkamer:
De masterbedroom heeft een oppervlakte van 16,4 m² en is voorzien van vloerbedekking.
De tweede slaapkamer van 9,3 m² biedt eveneens vrij uitzicht richting het Hof.
De ruime badkamer is uitgevoerd met een stijlvolle grijze vloertegel en witte wandbetegeling tot het plafond, een ruime inloopdouche, breed wastafelmeubel met bijpassende badkamerkast en een handdoekenradiator.

Buitenterras:
Heerlijk zonnig terras van 13 m², voorzien van een stijlvol stalen hekwerk en met prachtig uitzicht op het stadspark.

Parkeerplaats:
In de parkeerkelder beschikt u over een eigen, ruime parkeerplaats. De parkeergarage is volledig afgesloten en uitsluitend toegankelijk voor bewoners.

Berging:
Er is een eigen berging van ca. 6 m². Daarnaast kunt u gebruikmaken van de gezamenlijke fietsenberging, voorzien van oplaadpunten voor fietsaccu’s.

Bijzonderheden:
• Oplevering in overleg, indicatie februari/maart 2026
• Bouwjaar 2019
• Volledig voorzien van vloerverwarming, per ruimte instelbaar
• Volledig geïsoleerd, woonoppervlakte 111 m2
• Verwarming en warm water via eigen Intergas HR cv-ketel (2019)
• Gelegen op eigen grond
• Complex voorzien van zonnepanelen
• Actieve VvE met maandelijkse bijdrage van € 142,50

-------------------------------------------------

Neem uw eigen NVM aankoopmakelaar mee, deze komt op voor uw belang.
De gegeven informatie is met zorg samengesteld, aan de juistheid of volledigheid kunnen echter geen rechten worden ontleend. Alle verstrekte informatie moet beschouwd worden als een uitnodiging tot het doen van een bod of om in onderhandeling te treden

Kenmerken

Overdracht

Vraagprijs
€ 625.000 k.k.
Inrichting
Gestoffeerd
Status
Verkocht onder voorbehoud
Oplevering
In overleg
Wijk
Hofbuurt

Bouw

Appartement
Portiekflat, Corridorflat
Woonlaag
2
Soort bouw
Bestaande bouw
Bouwjaar
2019
Onderhoud binnen
Uitstekend
Onderhoud buiten
Uitstekend

Oppervlakten en inhoud

Oppervlakte
111m²
Inhoud
355m³

Indeling

Kamers
3
Slaapkamers
2
Badkamers
1
Verdiepingen
1
Voorzieningen
Balansventilatie, Glasvezel kabel, Lift, TV-Kabel

Buitenruimte

Ligging
Aan park, Aan rustige weg, In woonwijk, Vrij uitzicht
Balkon
Ja
Schuur
Box

Energie

Energielabel
A
Isolatie
Dakisolatie, Dubbel glas, Muurisolatie, Vloerisolatie
Warm water
C.V.-ketel
Verwarming
C.V.-ketel, Vloerverwarming geheel
Ketel
Intergas HR (2019, Combi-ketel, Eigendom)
Soort garage
Parkeerkelder, Parkeerplaats

Bekijk verloop van de zon

Uw browser ondersteunt geen WebGL

Documenten

Locatie

Bereken route
[ { "address": "Kleine Buitenweide 83", "zipCode": "3134 AH", "city": "Vlaardingen", "lat": 51.9143152, "lng": 4.3502003, "heading": 0, "pitch": 0 } ]

Stel een vraag

Deze woning is Verkocht onder voorbehoud

Uw bericht is naar ons verzonden. Wij nemen zo snel mogelijk contact met u op.

Er is iets mis gegaan met het versturen van het formulier.
Controleer of u alle velden (goed) heeft ingevoerd en probeer het nog een keer.

Wilt u een bezichtiging plannen?

Hoeveel is ?