Van Driel Makelaardij gebruikt cookies om de website naar behoren te laten werken, om functies voor social media te bieden en om onze website te analyseren. Op onze website kun je ons Cookiebeleid vinden.

Jacoba van Beierenstraat 78 - Vlaardingen

Verkocht onder voorbehoud

Plattegronden

Omschrijving

Instap klaar, goed onderhouden en heerlijk licht tweekamerappartement van ca. 47 m², gelegen op de tweede woonlaag met een zonnig balkon!
De ligging in een groene en rustige omgeving, met nieuwe woningen en winkels om de hoek, maakt dit appartement ideaal. Dankzij de ramen aan zowel de voor- als achterzijde geniet je van een levendig uitzicht en veel natuurlijk licht. De keuken en badkamer zijn recent vernieuwd, waardoor je hier zó kunt intrekken. Het appartement maakt deel uit van een verzorgd wooncomplex met lift, een actieve Vereniging van Eigenaren en een prachtig aangelegde gezamenlijke tuin met fraaie beplanting.

Locatie:
Het gebouw bevindt zich in een aangename woonwijk, direct naast het groene park De Heemtuin met kinderboerderij en speeltuin. De ligging is zeer centraal: winkels, supermarkt en openbaar vervoer liggen op loopafstand. Dankzij de gunstige ligging nabij de uitvalswegen (A2, A24 en A4) zijn steden als Rotterdam en Delft uitstekend bereikbaar. Het gezellige centrum van Vlaardingen ligt op korte fietsafstand en biedt volop keuze aan winkels, restaurants en uitgaansgelegenheden.

Indeling:
Omschrijving:
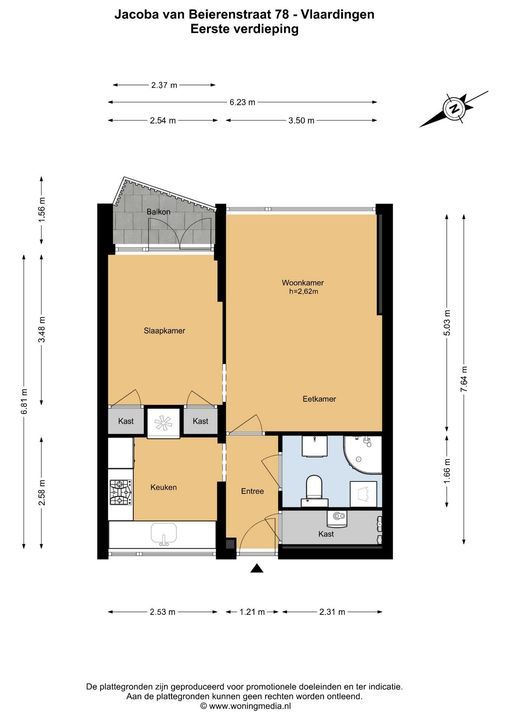
Entree, hal met laminaatvloer die doorloopt naar de keuken. In de diepe bergkast bevinden zich de meterkast, de opstelling van de nieuwe boiler en extra bergruimte.
De moderne, vernieuwde badkamer is volledig betegeld en voorzien van een douchecabine met thermostaatkraan, een hangend toilet, een stijlvol wastafelmeubel met badkamerkast, comfortabele elektrische vloerverwarming, ingebouwde plafondverlichting en een wasmachineaansluiting.
De dichte keuken (ca. 6,5 m²) is in 2019 vernieuwd in een eigentijdse witgrijze hoekopstelling en uitgerust met diverse inbouwapparatuur: combi-oven, vaatwasser, inductiekookplaat, afzuigkap, soft-close laden, verlichting in de koof, deels betegelde achterwand en een nis voor de koelkast.
De lichte woonkamer van bijna 20 m² beschikt over een laminaatvloer, groot raam met vrij uitzicht, deels glad stuk wanden en een strak plafond. Vanuit de woonkamer is er toegang tot de naastgelegen slaapkamer (ca. 9,3 m²) met laminaatvloer, inbouwkasten en openslaande deuren naar het zonnige balkon.
In de onderbouw bevindt zich een ruime eigen berging van ca. 7 m².


Bijzonderheden:
- Oplevering in overleg.
- Bouwjaar: 1963.
- Woonoppervlak bedraagt ca. 47m2.
- Warmwatervoorziening via nieuwe 100 liter elektrische boiler.
- Verwarming door middel van blokverwarming, hiervoor wordt een voorschot van € 100,- per maand betaald aan de vve.
- meterkast met 7 groepen en 2x aardlekschakelaar
- Actieve vve met een maandelijkse bijdrage á € 237,-.
- Gratis parkeergelegenheid voor het wooncomplex.
- Erfpacht vaste canon van € 68,07 per jaar loopt tot 1 oktober 2060.
- In de koopakte wordt een ouderdomsclausule opgenomen.

-------------------------

Neem uw eigen NVM aankoopmakelaar mee, deze komt op voor uw belang.
De gegeven informatie is met zorg samengesteld, aan de juistheid of volledigheid kunnen echter geen rechten worden ontleend. Alle verstrekte informatie moet beschouwd worden als een uitnodiging tot het doen van een bod of om in onderhandeling te treden.

Kenmerken

Overdracht

Vraagprijs
€ 225.000 k.k.
Inrichting
Gestoffeerd
Status
Verkocht onder voorbehoud
Oplevering
In overleg
Wijk
Wetering

Bouw

Appartement
Galerijflat
Woonlaag
2
Soort bouw
Bestaande bouw
Bouwjaar
1963
Onderhoud binnen
Uitstekend
Onderhoud buiten
Uitstekend

Oppervlakten en inhoud

Oppervlakte
47m²
Inhoud
140m³

Indeling

Kamers
2
Slaapkamers
1
Badkamers
1
Verdiepingen
1
Voorzieningen
Buitenzonwering, Lift, TV-Kabel

Buitenruimte

Ligging
Aan rustige weg, In woonwijk, Vrij uitzicht
Balkon
Ja
Schuur
Box

Energie

Energielabel
D
Isolatie
Dubbel glas
Warm water
Elektrische boiler eigendom
Verwarming
Blokverwarming

Bekijk verloop van de zon

Uw browser ondersteunt geen WebGL

Documenten

Locatie

Bereken route
[ { "address": "Jacoba van Beierenstraat 78", "zipCode": "3132 JR", "city": "Vlaardingen", "lat": 51.9130844, "lng": 4.3192942, "heading": 0, "pitch": 0 } ]

Stel een vraag

Deze woning is Verkocht onder voorbehoud

Uw bericht is naar ons verzonden. Wij nemen zo snel mogelijk contact met u op.

Er is iets mis gegaan met het versturen van het formulier.
Controleer of u alle velden (goed) heeft ingevoerd en probeer het nog een keer.

Wilt u een bezichtiging plannen?

Hoeveel is ?