Van Driel Makelaardij gebruikt cookies om de website naar behoren te laten werken, om functies voor social media te bieden en om onze website te analyseren. Op onze website kun je ons Cookiebeleid vinden.

Merantistraat 93 - Rotterdam

Verkocht onder voorbehoud

Plattegronden

Omschrijving

Op zoek naar een instapklaar appartement met vrij uitzicht? Kom dan kijken in dit lichte en sfeervolle 3-kamer topappartement mét heerlijk zonnig terras. De woning bevindt zich op de 3e (bovenste) verdieping van een verzorgd appartementencomplex met lift en een actieve VvE. Vanaf het zonnige balkon geniet je van een prachtig vrij uitzicht over de Kreeksehaven en kijk je schuin richting het Eiland van Brienenoord.
Dankzij de centrale ligging bevinden diverse voorzieningen zich op korte afstand: wijkwinkelcentrum Keizerswaard, scholen, openbaar vervoer, het Maasstad Ziekenhuis, De Kuip en de Nieuwe Maas. Het bruisende centrum van Rotterdam ligt op slechts ca. 20 minuten fietsen.
Hier woon je rustig, licht en comfortabel met alleen bestemmingsverkeer in de straat.

Indeling

Begane grond:
Afgesloten portiek met bellentableau en brievenbussen. Een nette entreehal biedt toegang tot de bergingen, het trappenhuis en de lift.

3e verdieping (= 4e woonlaag)
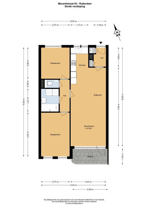
Entree via de galerij. Hal met meterkast, cv-kast en toegang tot de woonkamer.

De doorzonwoonkamer met open keuken vormt een heerlijk lichte leefruimte en biedt toegang tot het balkon. De verdieping is voorzien van een moderne houtlook laminaatvloer en strak afgewerkte wanden.
De Ikea-keuken in praktische L-opstelling heeft hoogglans witte fronten, een houtlook aanrechtblad en een fris wit betegelde achterwand. De keuken is compleet uitgerust met 5-pits gaskookplaat, afzuigkap, combi-oven, koel-/vriescombinatie en vaatwasser.

Via de woonkamer stap je zo het zonnige balkon op (zuidligging), waar je de hele dag door kunt genieten van het uitzicht over het water.

Aangrenzend ligt de gang met toegang tot de slaapkamers, het toilet en de badkamer.

De slaapkamer aan de voorzijde is ca. 12 m² en de slaapkamer aan de achterzijde ca. 10 m², beide zijn voorzien van een laminaatvloer. Tussen de kamers in bevinden zich de badkamer en het toilet.

De toiletruimte is modern betegeld en is voorzien van zwevend toilet, fonteintje en ingebouwde plafondverlichting. De badkamer is eveneens modern afgewerkt en beschikt over een ligbad met douche, glazen spatscherm, handdoekradiator, een wastafel met meubel en de wasmachineaansluiting.

Berging
In de onderbouw bevindt zich een eigen, praktische berging van ca. 5 m².

Bijzonderheden:
- Bouwjaar 1989;
- Woonoppervlak ca. 63 m²;
- Verwarming en warm water via cv-ketel (2007);
- Energielabel C;
- 6 groepen en 2x aardlekschakelaar;
- Gelegen op EIGEN GROND;
- Voorzien van houten kozijnen met dubbel glas, energielabel C;
- Actieve VvE, maandelijkse bijdrage € 191,67;
- Oplevering in overleg, indicatie tweede helft maart 2026.

--------------------------------------

Neem uw eigen NVM aankoopmakelaar mee, deze komt op voor uw belang.
De gegeven informatie is met zorg samengesteld, aan de juistheid of volledigheid kunnen echter geen rechten worden ontleend. Alle verstrekte informatie moet beschouwd worden als een uitnodiging tot het doen van een aanbod of om in onderhandeling te treden.

Kenmerken

Overdracht

Vraagprijs
€ 300.000 k.k.
Inrichting
Gestoffeerd
Status
Verkocht onder voorbehoud
Oplevering
In overleg
Wijk
Oud IJsselmonde

Bouw

Appartement
Galerijflat, Appartement
Woonlaag
4
Soort bouw
Bestaande bouw
Bouwjaar
1989
Onderhoud binnen
Goed
Onderhoud buiten
Goed

Oppervlakten en inhoud

Oppervlakte
64m²
Inhoud
195m³

Indeling

Kamers
3
Slaapkamers
2
Badkamers
1
Verdiepingen
1
Voorzieningen
Buitenzonwering, Lift, TV-Kabel

Buitenruimte

Ligging
Aan rustige weg, waterfront, Aan het water, In woonwijk, Vrij uitzicht
Balkon
Ja
Schuur
Box

Energie

Energielabel
C
Isolatie
Dakisolatie, Dubbel glas
Warm water
C.V.-ketel
Verwarming
C.V.-ketel
Ketel
Bosch (2006, Combi-ketel, Eigendom)

Bekijk verloop van de zon

Uw browser ondersteunt geen WebGL

Documenten

Locatie

Bereken route
[ { "address": "Merantistraat 93", "zipCode": "3077 WE", "city": "Rotterdam", "lat": 51.8985079, "lng": 4.5413206, "heading": 0, "pitch": 0 } ]

Stel een vraag

Deze woning is Verkocht onder voorbehoud

Uw bericht is naar ons verzonden. Wij nemen zo snel mogelijk contact met u op.

Er is iets mis gegaan met het versturen van het formulier.
Controleer of u alle velden (goed) heeft ingevoerd en probeer het nog een keer.

Wilt u een bezichtiging plannen?

Hoeveel is ?