Van Driel Makelaardij gebruikt cookies om de website naar behoren te laten werken, om functies voor social media te bieden en om onze website te analyseren. Op onze website kun je ons Cookiebeleid vinden.

Hoonaartstraat 21 - Hellevoetsluis

Verkocht onder voorbehoud

Plattegronden

Omschrijving

In de gezellige en geliefde wijk West ligt deze fijne tussenwoning met een ruime voor- en achtertuin.

Dankzij de uitbouw is er aanzienlijk meer woonoppervlak gecreëerd, en bovendien is er veel aandacht besteed aan verduurzaming. De woning beschikt over 10 zonnepanelen, dakisolatie, dubbel glas en vloer oppervlakte is volledig geïsoleerd, wat samen resulteert in energielabel C.
Met een perceel van 128 m² eigen grond en een gunstige ligging nabij winkels, scholen en uitvalswegen, zijn alle voorzieningen binnen handbereik. Daarnaast ben je in een mum van tijd op het strand of in het groene recreatiegebied.

Indeling begane grond:
Entree met ruime hal, trapkast en toilet in hangende uitvoering met fonteintje. De vloer is afgewerkt met fraaie tegels in travertinlook. Het toilet is voorzien van systeemplafond met ingebouwde verlichting en mechanische ventilatie.
De royale L-vormige doorzonwoonkamer (ca. 36 m²) heeft grote ramen met vrij uitzicht en strak afgewerkte pleisterwerkwanden. In het uitgebouwde gedeelte bevindt zich de sfeervolle Siematic retro keuken (ca. 8 m²) met granieten aanrechtblad, betegelde achterwand en diverse inbouwapparatuur, waaronder een oven, inductiekookplaat, vaatwasser, koelkast en een 10-liter elektrische boiler. Vanuit de keuken is er toegang tot de achtertuin.

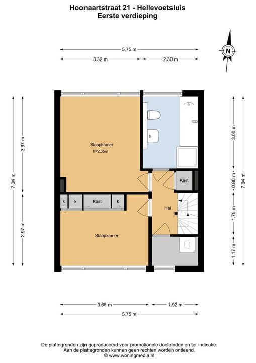
Indeling 1e verdieping:
Overloop met vaste kast.
De slaapkamer aan de voorzijde (ca. 11 m²) beschikt over een kastenwand, systeemplafond en vrij uitzicht. De hoofdslaapkamer aan de achterzijde (ca. 13 m²) biedt eveneens een prettige lichtinval.
De voormalige derde slaapkamer is in de jaren negentig verbouwd tot een comfortabele badkamer, uitgevoerd met kwaliteitsmaterialen. Deze is voorzien van een betonvloer, kunststof ligbad, douchecabine, wastafelmeubel, betegeling tot aan het plafond en een raam met daglicht en ventilatie. Aan de voorzijde bevindt zich een natte ruimte met wasmachineaansluiting, volledig betegeld.

Indeling 2e verdieping:
Dankzij de dakkapel is deze verdieping verrassend ruim.
De overloop is voorzien van een laminaatvloer en biedt plaats aan de cv-installatie (Intergas HR, 2008) en veel bergruimte. De zolderkamer (ca. 13 m²) beschikt over een hardhouten dakkapel met dubbel glas en eveneens bergruimte in de schuine dakvlakken. De noordzijde van de zolder is geïsoleerd.

Tuin(en):
De voortuin (ca. 4 m diep) is fraai aangelegd met veel groen en ligt vrij aan een groenstrook.
De achtertuin (ca. 8,5 m diep en bijna 3,5 m breed) is grotendeels betegeld, voorzien van een gemetselde schutting en een achterom. Achterin staat een stenen berging (ca. 9 m²) met elektra.

Bijzonderheden:
- Oplevering in overleg kan snel.
- Bouwjaar 1962.
- Woonoppervlak 115 m2.
- Gelegen op 128 m2 EIGEN GROND.
- Energielabel C. (deels dakisolatie, vloerisolatie, dubbel glas en 10 zonnepanelen)
- Verwarming en warm water middels HR CV-ketel, Intergas 2008.
- Meterkast met 6 groepen en aardlekschakelaar.
- In de koopakte wordt een ouderdomsclausule opgenomen.

-----------------------

Neem uw eigen NVM aankoopmakelaar mee, deze komt op voor uw belang.

De gegeven informatie is met zorg samengesteld, aan de juistheid of volledigheid kunnen echter geen rechten worden ontleend. Alle verstrekte informatie moet beschouwd worden als een uitnodiging tot het doen van een aanbod of om in onderhandeling te treden.

Kenmerken

Overdracht

Vraagprijs
€ 350.000 k.k.
Inrichting
Gestoffeerd
Status
Verkocht onder voorbehoud
Oplevering
In overleg
Wijk
Dorp en Hoonaart

Bouw

Woonhuis
Eengezinswoning, Tussenwoning
Soort bouw
Bestaande bouw
Bouwjaar
1962
Onderhoud binnen
Goed
Onderhoud buiten
Goed

Oppervlakten en inhoud

Oppervlakte
115m²
Perceel
128m²
Overig
11m²
Inhoud
407m³

Indeling

Kamers
4
Slaapkamers
3
Badkamers
1
Verdiepingen
3
Voorzieningen
Buitenzonwering, Mechanische ventilatie, TV-Kabel

Buitenruimte

Ligging
Aan rustige weg, In woonwijk, Vrij uitzicht
Tuin
Achtertuin, Voortuin
Achtertuin
Noordoost, 31m², 370×850cm
Schuur
Aangebouwd steen
Faciliteiten schuur
Voorzien van elektra

Energie

Energielabel
C
Isolatie
Dakisolatie, Dubbel glas, Vloerisolatie
Warm water
C.V.-ketel, Elektrische boiler eigendom
Verwarming
C.V.-ketel
Ketel
Intergas HR (2008, Combi-ketel, Eigendom)

Bekijk verloop van de zon

Uw browser ondersteunt geen WebGL

Documenten

Locatie

Bereken route
[ { "address": "Hoonaartstraat 21", "zipCode": "3222 CK", "city": "Hellevoetsluis", "lat": 51.8367182, "lng": 4.1307047, "heading": 0, "pitch": 0 } ]

Stel een vraag

Deze woning is Verkocht onder voorbehoud

Uw bericht is naar ons verzonden. Wij nemen zo snel mogelijk contact met u op.

Er is iets mis gegaan met het versturen van het formulier.
Controleer of u alle velden (goed) heeft ingevoerd en probeer het nog een keer.

Wilt u een bezichtiging plannen?

Hoeveel is ?